Open Houses
Saturday, 04/25/2026
2:00 - 5:00PM CDT
Description
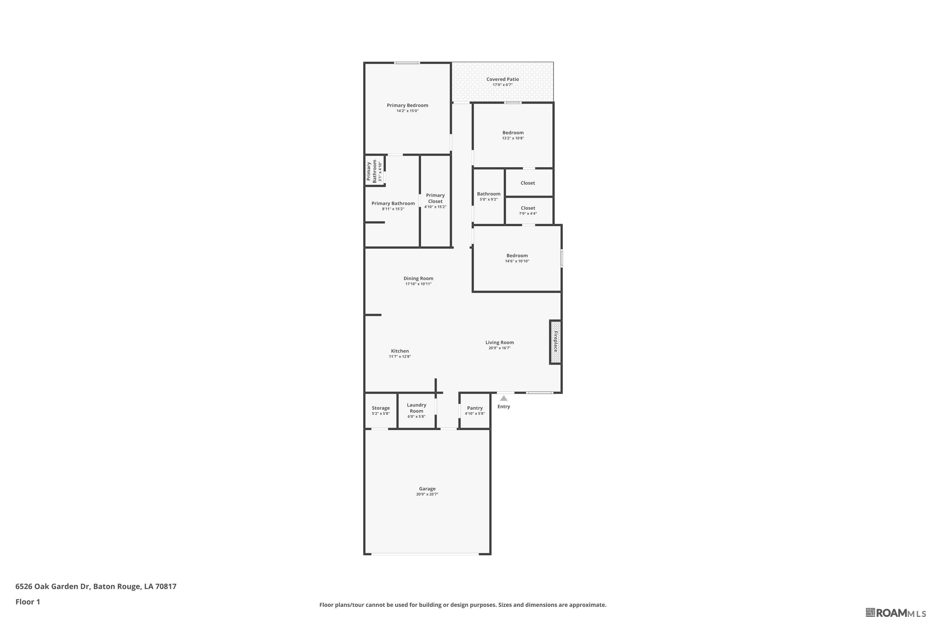
Well-appointed home in the highly sought-after St. George area, built by Clegg Builders and designed with a great balance of style, comfort, and functionality. Step inside to an open-concept layout with 10’ ceilings and a light, airy feel throughout. The living room is anchored by a striking fireplace featuring a painted brick façade, brick hearth, gas logs, and a warm wood mantle—creating a space that feels both inviting and elevated. The kitchen is a standout, designed for both everyday living and entertaining, with a large island, designer quartz countertops, stainless steel appliances, gas cooktop, tile backsplash, custom cabinetry, pantry, and stylish fixtures. It opens seamlessly into a spacious dining area, making gatherings feel effortless. You’ll love the continuity of wood flooring throughout the living areas and bedrooms, with tile in the bathrooms—no carpet anywhere. The primary suite offers a comfortable retreat with an en-suite bath featuring quartz countertops, dual vanities with generous counter space and drawer storage, a separate shower, spa tub, and a walk-in closet. Out back, enjoy the extended covered patio featuring a classic haint blue ceiling—a timeless Southern touch—perfect for relaxing or entertaining, along with a fully fenced yard. Additional features include a 2-car garage with a separate enclosed storage room, plus the added convenience of the refrigerator, washer, and dryer remaining for a truly move-in ready opportunity.
Location
Listed By
Similar Listings
No similar listings found
Unfortunately, we don't have any similar listings at the moment. Please remove or change some of the selected filters.

The data relating to real estate for sale on this web site comes in part from the Internet Data exchange (“IDX”) program of Bayou Board of Realtors. IDX information is provided exclusively for consumers' personal, non-commercial use and may not be used for any purpose other than to identify prospective properties consumers may be interested in purchasing. Information deemed reliable but not guaranteed. Copyright© Bayou Board of Realtors. Updated: 20th April, 2026 3:00 PM (UTC)

